Calcoli indipendenti per struttura a sbalzo di segnaletica autostradale nel Regno Unito

L'autostrada M1 | United Kingdom | Richter Associates
Questo articolo è disponibile anche in:
Tradotto dall'intelligenza artificiale dall'inglese
Un progetto complesso per la verifica indipendente di una struttura a sbalzo ad anello per segnaletica lungo l'autostrada M1 in Inghilterra ha richiesto valutazioni strutturali di alto livello. Con scadenze stringenti e requisiti strutturali complessi, le capacità di progettazione dei collegamenti di IDEA StatiCa si sono rivelate fondamentali per fornire risultati affidabili e conformi alle normative.

Informazioni sul Progetto

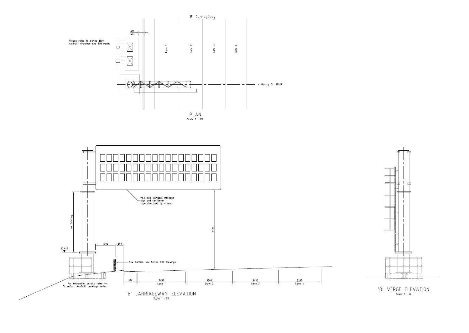
L'aggiornamento della segnaletica dell'autostrada M1 ha richiesto una struttura a sbalzo ad anello supportata da una sottostruttura a graticcio in acciaio, fissata con pali a vite su un rilevato in pendenza. Posizionato sopra una delle autostrade più trafficate d'Inghilterra, questo progetto di verifica indipendente ha richiesto calcoli e modellazioni meticolosi per garantire che la struttura soddisfacesse i rigorosi standard Eurocode, in particolare per la fatica in condizioni di elevato carico da traffico.

Richter Associates, uno studio di ingegneria con sede in Polonia specializzato in opere provvisionali e ingegneria geotecnica, ha condotto il progetto. Il team, guidato dall'ingegnere principale Maciej Adamczyk, ha combinato competenze nelle opere provvisionali e nella progettazione dei collegamenti per fornire una soluzione efficiente e accurata. Questo progetto ha evidenziato la capacità di Richter Associates di integrare strumenti innovativi come IDEA StatiCa nei propri flussi di lavoro per raggiungere sia l'eccellenza tecnica che la soddisfazione del cliente.

inline image in article

Sfide Ingegneristiche

Questo progetto ha presentato una serie di sfide tecniche e logistiche. La struttura a sbalzo ad anello, situata su un rilevato in pendenza, doveva resistere a carichi ripetitivi indotti dal traffico e a forze di collisione accidentali, rispettando al contempo i severi requisiti di fatica e robustezza delineati nelle norme CD 365 e Eurocode. Le verifiche a fatica erano richieste per tutti gli elementi strutturali e le piastre, in particolare saldature, bulloni e irrigidimenti, dove i picchi di tensione ad alto sfruttamento erano più probabili. IDEA StatiCa è stato fondamentale per determinare rapidamente e accuratamente i range di tensione in tutte le parti, una capacità senza pari rispetto ad altri software.

inline image in article

Le forze di collisione, che non facevano parte delle specifiche di progetto originali, hanno introdotto ulteriore complessità. Queste forze hanno influenzato significativamente lo sfruttamento delle piastre in acciaio e dei bulloni, richiedendo un'analisi sofisticata per garantire la conformità senza sovradimensionamento. La struttura si basava inoltre su 12 pali a vite per stabilizzare e distribuire i carichi su condizioni del suolo variabili, complicando ulteriormente il processo di verifica.

inline image in article

Inizialmente, il team aveva pianificato di verificare ogni collegamento singolarmente. Tuttavia, dato il numero di elementi interdipendenti, questo approccio si è rivelato inefficiente. Il team ha invece adottato un approccio di modellazione globale utilizzando IDEA StatiCa, consentendo di analizzare tutti i collegamenti simultaneamente e semplificare il processo. Il ritmo serrato del mercato delle opere provvisionali nel Regno Unito ha aggiunto ulteriore pressione, rendendo necessaria una soluzione in grado di fornire risultati entro scadenze stringenti senza compromettere l'accuratezza o la conformità.

Soluzioni e Risultati

Il flusso di lavoro è iniziato con Tekla Structural Designer per la modellazione di base, che ha fornito informazioni sulle distribuzioni dei carichi e sulle reazioni dei pali in condizioni standard. Fin dall'inizio, il team aveva pianificato di utilizzare IDEA StatiCa Connection per le verifiche dettagliate dei collegamenti, ma con l'evolversi del progetto, l'ambito si è ampliato per coprire tutti gli elementi strutturali in un unico modello. Questo passaggio a un modello globale, facilitato dal Metodo degli Elementi Finiti basato sui Componenti (CBFEM) di IDEA StatiCa, ha consentito a Richter Associates di analizzare in modo completo combinazioni di carichi complesse, picchi di tensione ed effetti di fatica.

inline image in article

La flessibilità di IDEA StatiCa nel modellare i collegamenti mediante elementi e piastre di irrigidimento si è rivelata preziosa. Questi strumenti hanno consentito al team di definire dettagli complessi e valutarne il comportamento in condizioni di carico specifiche, garantendo la conformità agli standard di fatica CD 365 e Eurocode. Una delle caratteristiche più rilevanti del software è stata la sua capacità di consolidare più verifiche di collegamento in un unico modello, migliorando notevolmente l'efficienza del flusso di lavoro e l'accuratezza. Adottando questo approccio, il team non solo ha risparmiato tempo significativo, ma ha anche garantito risultati coerenti su tutti gli elementi della struttura.

inline image in article

Il software ha inoltre affrontato le sfide legate ai requisiti di robustezza. Il portale è stato verificato per forze d'impatto aumentate senza richiedere riprogettazione o rinforzo, evitando costi e ritardi non necessari. La reportistica automatizzata di IDEA StatiCa ha ulteriormente migliorato il processo fornendo output professionali e di alta qualità che hanno superato le aspettative del cliente, semplificando la comunicazione e rafforzando la fiducia degli stakeholder.

inline image in article

Questo progetto ha sottolineato il valore unico di IDEA StatiCa come qualcosa di più di un semplice strumento per la progettazione dei collegamenti. La sua capacità di analizzare intere sezioni di una struttura con più collegamenti in un unico modello lo ha reso una soluzione indispensabile per progetti complessi. La combinazione di flessibilità, velocità e accuratezza, insieme alle sue capacità di reportistica automatizzata, ha dimostrato come IDEA StatiCa possa trasformare i flussi di lavoro e soddisfare i requisiti di progetto più esigenti.

Informazioni su Richter Associates Poland

Fondata nel 1990, Richter Associates è specializzata nella progettazione di opere provvisionali, sebbene la loro vasta competenza significhi che offrono servizi di ingegneria altamente sviluppati per tutti i progetti di costruzione. Con una ricca esperienza nel lavoro su edifici, ponti, opere geotecniche, lavori marittimi, ristrutturazioni, ferrovie, infrastrutture e demolizioni, non esiste sfida costruttiva che non possano affrontare. Riuniscono gli ingegneri e gli amministratori, i partner e gli studi che compongono il loro team in un'organizzazione unificata e profondamente collaborativa. Richter Associates (Polonia) è stata fondata nel 2021 ed è considerata una delle migliori all'interno del Gruppo Richter, realizzando progetti nel Regno Unito, Germania, Norvegia e Polonia. Sono noti per affrontare e portare a termine i progetti più complessi, e la loro competenza ingegneristica e la cultura aziendale sono la forza trainante di questo successo.

Prova IDEA StatiCa gratuitamente

Inizia la tua prova oggi e goditi 14 giorni di accesso completo e servizi gratuiti.

ALTRI CASI STUDIO

Il Ponte Ferroviario ad Arco

Halle des Saveurs

Richter Associates

Richter Associates

Poland
Fondata nel 1990, Richter Associates è specializzata nella progettazione di opere provvisionali, sebbene la sua vasta competenza le consenta di offrire servizi di ingegneria altamente sviluppati per tutti i progetti di costruzione. Con una ricca esperienza nel settore degli edifici, ponti, opere geotecniche, lavori marittimi, ristrutturazioni, ferrovie, infrastrutture e demolizioni, non esiste sfida costruttiva che non siano in grado di affrontare. Dettagli